Repairs to Wimborne’s Allendale Community Centre may now be in doubt – with questions now being asked about the long-term future of the building.
Dorset Council has delayed repairs to the main roof due to take place in 2023, and again this year.
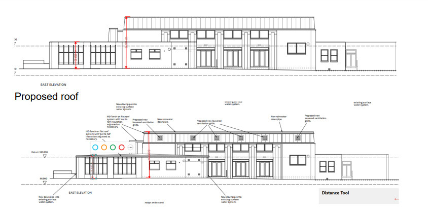
The work had first been proposed in 2020 as part of the lease agreement and has detailed planning consent to go ahead. The application said the repairs were needed because ongoing leaks were causing damage to the interior of the building.
Other works were also scheduled for the Hanham Road site, including new gutters and downpipes, new louvered vents, and additions to the centre’s insulation.
Dorset councillors were told this week, in response to a question from the Wimborne and District Community Association, who have leased the building since April 2022 on a 15-year contract, that the proposed work is now under review.
Trustee Carole Chedgy who is vice chair of the trustees, said the group had been told that the repair works had been pulled because the building was now part of a ‘development and regeneration zone’ for the town.
Dorset Council’s interim head of assets and development, Jessica Maskrey, said the deferral of the works was not due to the council’s current strategic asset management plan review, but was being paused because the authority needed to be assured that the roof and other recently identified external works were the best option given the increasing cost of repairs, and that the building was “safe, legal, and compliant ahead of major building improvements.”
She told a council committee that all council capital works were currently being prioritised according to the condition of buildings involved. She also confirmed that a strategic review of all Dorset Council-owned assets in Wimborne is underway including the former magistrates’ court, the Pippins social services centre site and the St John ambulance base.
“A decision will be made in the near future on the repairs to the Allendale Centre and by the end of the year Dorset Council will provide an update,” she said.
The 47-metre by 42-metre centre was built alongside the River Allen in the early 1970s and includes two large halls, The Minster hall and Quarter Jack, popular for a range of local functions, together with two smaller spaces, the Canford Room and the Julian Room. The building also has a café and hosts films, music, dance and theatre events as well as providing meeting space for a number of community groups.
The central section of the building incorporated the main hall, equivalent to two storeys tall, with the remainder of the building single story with flat roofs.

Illustration – Architect’s drawing of the Allendale Centre showing the originally proposed works.
Share us with your friends on social media, and have a listen to Bournemouth One online and on DAB for all your local news, traffic, jobs, weather, coastal info and more.
Register below for free regular updates via email.

